首先說一下本案例濃相系統是給陜西某環??萍加邢薰倦娛C合利用(脫硫劑)項目系統規程。此的輸送量為3t/h輸送距離70m垂直高度為20m

濃相操作步驟
1檢查各氣動元件是否正常;
2檢查電源是否正常;
3檢查儀表和輸送是否正常;
4檢查電器各連接點是否緊固可靠;
5 初步無負荷試車;
6手動操作時必須按操作順序進行操作,否則易造成輸送管道堵塞;2知我者謂我心憂
7先用手動方式檢查各控制點和被控制點是否正確,是否有漏氣現象,并將油霧器中加入潤滑油。觀察氣源壓力是否正常(0.5MPa);
8用自動方式對各控制點和被控制點、PLC控制和對應發送是否正確。

氣力輸送系統試車前的準備與確認
1對裝置進行全面綜合性檢查,確保試運轉及生產運轉的順利進行,操作人員必須做好充分的確認;
2清理周圍的場地,危險品及可燃物都要清理干凈。現場清潔、無雜物、無障礙;
3確認消防設備,滅火設備,火災警報器能正常地工作,事先也要進行滅火訓練;
4裝置內嚴禁閑人進入,在進行特殊操作時,采用安全措施,非工作人員不得入內;
5準備好安全保護器具、氣體檢測器、分析器具、操作用工器具等,以便隨時都可以使用;
6從外部檢查法蘭處的螺栓、螺母、填料,確認螺栓、螺母均已配備齊全;確認在耐壓、氣密試驗時使用的盲板均已被拆除;
7吹掃、清洗、氣密、儀表聯校等已完成;
8人員培訓已完成,崗位工器具已配齊;
9保運工作已落實;機、電、儀維修人員已備齊;
10壓縮氣、空氣系統條件完備;
11電氣、自控系統條件完備;
12現場人員勞保用品穿戴符合要求。
濃相氣力輸送系統操作程序

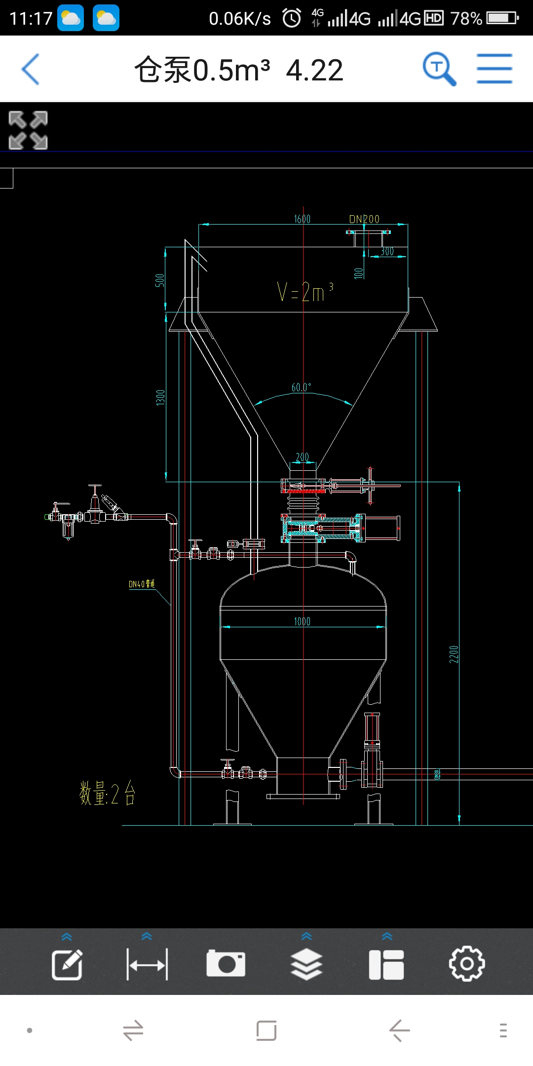
首先提供一臺倉泵試車,先以手動方式輸灰,注意倉泵內的壓力變化及進料和送料的時間,記錄其參數。然后,自動控制程序根據手動輸送得到的參數進行修正,再利用PLC自動控制程序輸灰,各環節若無異常,最后完成投料試車。
5.2 試車進度表(根據投料試車過程次數填寫下表)
6 發送倉泵投料開車操作

1首先將發送倉泵空試手動運行和投入自動運行,無異常后準備投料;
2再次檢查確認灰庫下方手動放灰閥是否關閉,自動放灰閥是否處在關閉狀態,灰庫頂部排氣閥和除塵器是否運行正常;
3灰庫的料位計是否工作正常,處在零米位置;
4將發送倉泵上面的盲板去掉(有盲板時);
5將發送倉泵上面的手動檢修閥打開;
6以就地手動方式向發送倉泵進灰(第一臺為取平均值可選一臺倉泵五次進灰,其它倉泵不用);
操作步驟為:開排氣閥→開進料閥→等待10-20S(根據流動性確定時間),關進料閥→關排氣閥;輕擊倉泵錐體部位(預測位置),開進氣→待壓力升至0.13-0.15MPa時開排料閥,觀察輸送時的最高壓力值,并記錄輸送時間和輸送壓力,達到下限(大概在0.05MPa左右)時,壓力不再下降表明已經完成輸送過程,關閉進氣閥→關排料閥,并調整進氣閥的調壓閥。
第二次進料,記錄進料時間達到倉泵料位上限,關閉進料閥→關排氣閥待3-5S開進氣閥→待壓力升至0.13-0.15MPa時開排料閥,此時注意觀察輸送時的最高壓力和輸送壓力,待料送完,并調整進氣閥的調壓閥。
第三次進料,記錄進料時間,何時達到料位計顯示料滿,料滿后關閉進料閥→關排氣閥待3-5S開進氣閥→待壓力升至0.13-0.15MPa時開排料閥,此時注意觀察輸送時的最高壓力和輸送壓力,是否和前幾次輸送時基本相同,此時進氣閥的調壓閥調整好后請不要再動,此壓力當調整過高時,可能會出現輸送完畢后倉泵壓力下限過高的現象,如壓力調整過低,則會影響正常輸送,造成輸送管道堵塞。
再重復進料兩次,使發送倉泵的料位計顯示料滿,取這三次進料時間的平均值(略低),并輸入PLC控制系統,若此平均值和原來內部的設定值差別不大,可不必改動,此時手動調試完畢。
7將就地控制箱上的“遠程/就地”旋鈕,旋至遠程,在PLC控制柜觸摸屏中調出相應畫面,在畫面中的“遠程就地”選擇按鈕,點擊“手動/自動”按鈕至“自動”后按壓對應的發送倉泵“投入”按鈕即可進行自動運行,若需要停止運行,則按下對應的“退出”按鈕。
停車操作步驟
待一個輸送單元完成后按退出按鈕,如長期停用切斷電源即可。
可能出現的問題及注意事項
1氣源壓力持續穩定;
2及時清理各儲氣罐,清理電磁閥前儀表氣源分離器中的污物,保持油霧器內部不缺油;
3如果發送倉泵進氣閥組的調壓閥未動,而在送料過程中物料已輸送完畢,而發送倉泵內壓力降不到設定的下限時,其原因是氣源管道中有雜質進入調壓閥內。解決方法為:將調壓閥前面的手動閥關閉,使調壓閥的調壓螺栓全部松開,再將調壓閥下面的螺帽(銅色)卸下,即可看到雜質,用氣吹下即可。
4如果發現輸送管道堵塞時,將此發送倉泵的增壓閥組中的調壓閥的壓力調到0.6MPa以上,并錘擊灰庫下部所對應的輸送管道彎管附近,即可解除堵管,疏通后將增壓閥組中的調壓閥復位。
5在手動輸送時,如果發送倉泵處在進氣和輸送狀態下,不能停止進氣和輸送,否則將造成輸送管道堵塞。
