產品分類一覽
負壓氣力輸送系統
- 負壓氣力輸送系統
- 所屬類目:負壓氣力輸送
- 產品亮點:
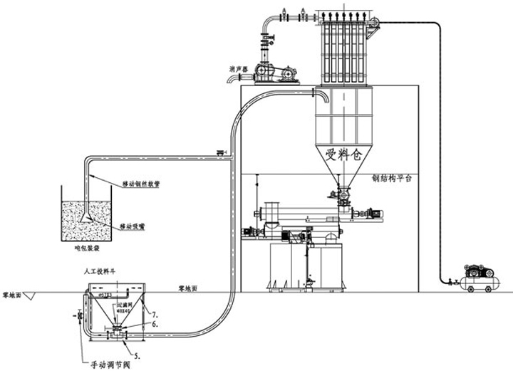
負壓氣力輸送系統基本原理
負壓氣力輸送系統就是其輸送的時整個管道壓力低于當地氣壓的輸送系統,壓吸送式氣流輸送是整個氣流輸送最早實際運用、最可靠、最成熟的輸送方式。根據工作壓強不同可以分為低真空(真空度小于1000mm水柱)和高真空(真空度大于1000mm水柱)兩種形式。
負壓氣力輸送系統基本原理
負壓氣力輸送一般用羅茨真空泵作動力源,將管路及罐式倉抽成一定的真空狀態,促成進風口在大氣壓的作用下形成物料粉粒料與氣體的兩相流,經輸送管道輸入旋風分離器。兩相流在旋風分離器內由于離心力及重力作用下,使大部分物料與氣體分離。少量的物料與氣體進入除塵器,通過濾袋作用使粉料與氣體分離,氣體排入大氣。

負壓氣力輸送系統特點
1.有最可靠的密閉性,管路內的粉塵不會泄漏于環境;
2.設備的制造、維護要求低,工人的可操作性強;
3.使用的壓力(真空度)小,安全性高;
4.輸送物料量大,輸送距離遠,輸送物料線路不受地形限制
5.輸送為連續式、亦可間斷,管道內無積存;
6.可以多點進料和多點卸料;
7.采用離心風機、羅茨風機為氣體動力源,使用壽命長;
8.對輸送物料的適應性強,粉料、顆粒料均可順利輸送。
